株式会社よかよか

FACILITY
施設紹介

3階建て、全17室の安心空間。
全室にバス・トイレ・キッチンを完備し、快適な暮らしをサポートします。

1号館

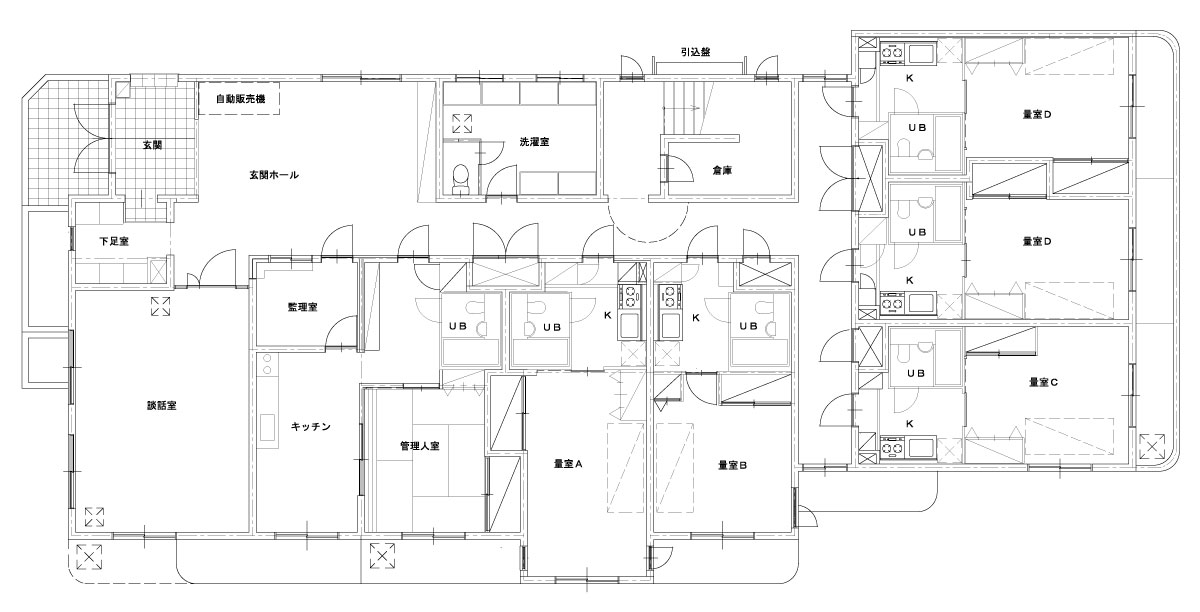
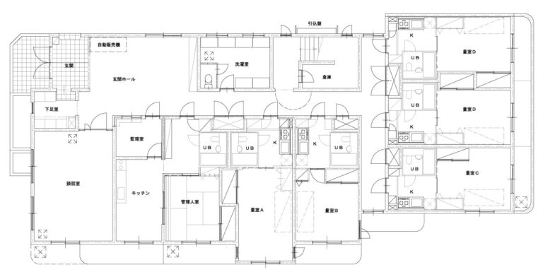
1階(5室)

2号館

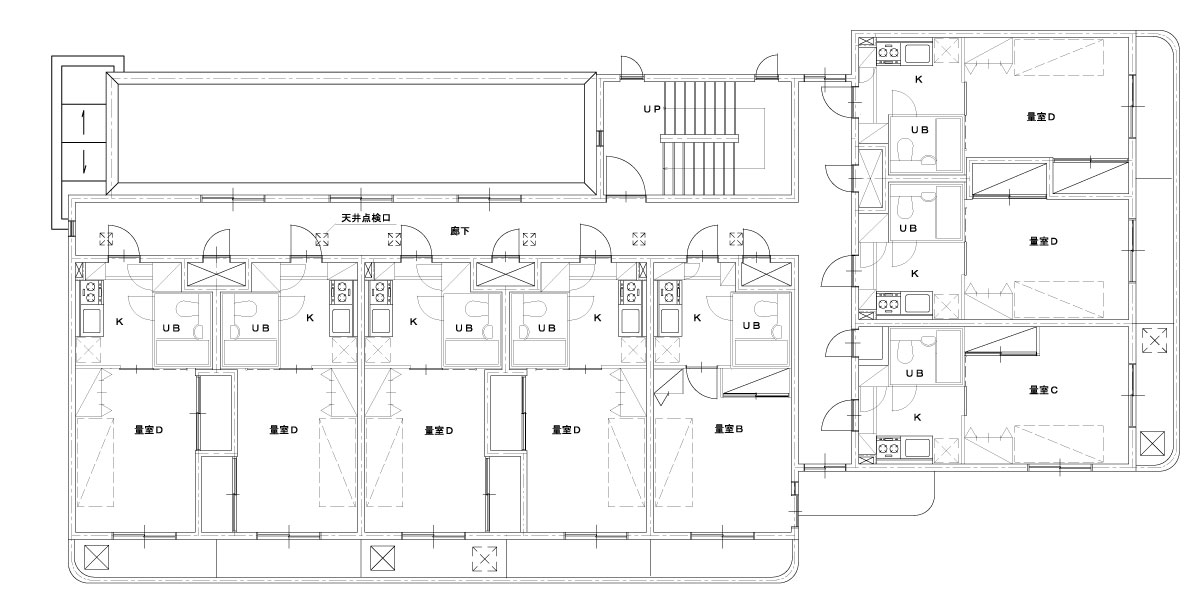
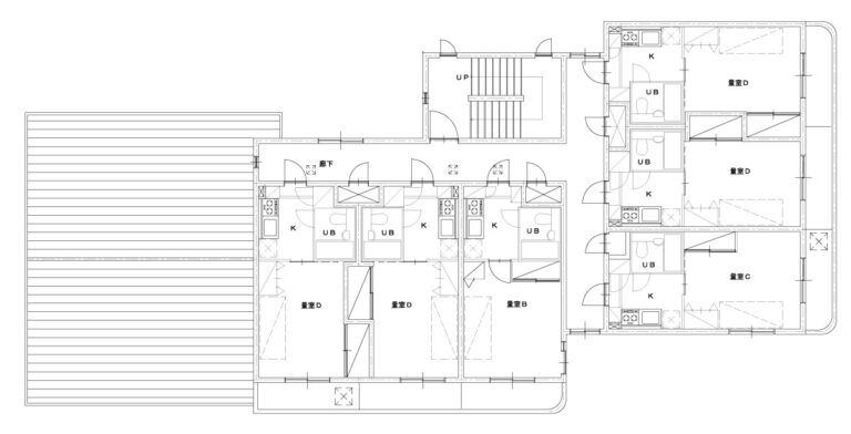
2階(7室)

3号館

3階(5室)

居室の特徴

全ての居室に、エアコン・トイレ・お風呂・キッチンを完備しています。プライベートな空間で、自分らしい暮らしを実現できます。

寝具はご持参いただきますが、その他の設備は整っているため、すぐに生活を始めることができます。

共用設備
  • 洗濯機 5台/乾燥機5台
  • 談話室(ビリヤード台、麻雀卓、ソファー)
  • 玄関ホール
エアコン
トイレ
お風呂
キッチン
Wi-Fi
収納スペース
施設ギャラリー
部屋イメージ
収納スペース
台所
お風呂・トイレ
郵便ポスト
洗濯機・乾燥機
玄関ホール
談話室(ビリヤード台・麻雀卓・ソファー)
職員室
1階間取り
2階間取り
3階間取り
ACCESSMAP
アクセスマップ

〒818-0102 福岡県太宰府市白川4-11
TEL:070-9222-0299

PAGE TOP